OneProject, SmartDraw et le Clonage : une nouvelle dimension dans la gestion des...
bocad, un atout clé pour maîtriser les projets de rénovation les plus exigeants
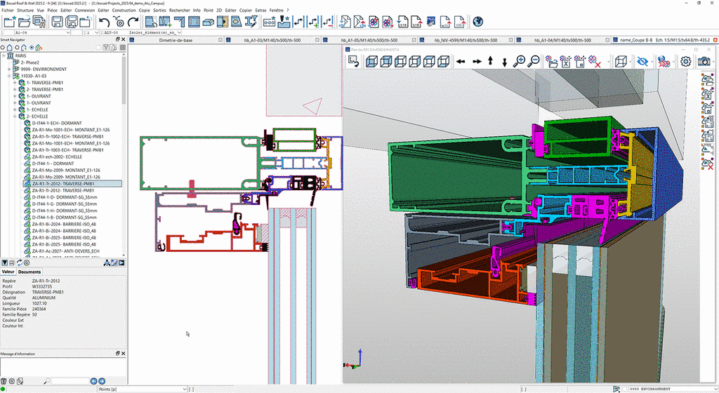
Castel Alu, filiale du groupe FAYAT, a été en charge de la rénovation complète d’un campus doté de 4 kilomètres de façade.
Un projet de grande envergure, rythmé par un phasage précis et des particularités techniques à chaque étage.
Bien que les niveaux se ressemblent, chaque façade comportait des spécificités qui nécessitaient une modélisation fine, une flexibilité maximale et une capacité d’adaptation tout au long du chantier.
AVANTAGES bocad
L’utilisation de bocad a permis à Castel Alu de :
- Modéliser rapidement l’ensemble des façades avec une grande précision
- Gérer le phasage du projet pour piloter efficacement la production et l’installation
- Répondre aux contraintes spécifiques de chaque zone du bâtiment
- Générer automatiquement les plans d’assemblage, les fichiers machines et les exports BIM
- Travailler en coordination avec les autres corps d’état grâce aux formats IFC et DWG 3D
Un projet qui prouve que bocad est parfaitement adapté aux rénovations complexes et longues, où l’optimisation des processus est essentielle à la réussite du chantier.
TEMOIGNAGE Castel Alu
« Une étape clé dans notre démarche de digitalisation et d’optimisation des processus »
« Pour Castel Alu, ce nouveau projet marque une étape clé dans notre démarche de digitalisation et d’optimisation des processus.
Nous avons mis un accent particulier sur le développement et l’automatisation des fiches de lancement en fabrication, garantissant ainsi une meilleure fluidité et une réduction des risques d’erreur.
La création d’une bibliothèque d’éléments 3D répétitifs nous a permis de modéliser plus efficacement les nombreuses façades du projet, accélérant considérablement le processus de conception.
Une fois ces façades générées, nous avons pleinement exploité la puissance de BOCAD pour transmettre directement les débits et usinages à nos centres d’usinage (C.U.), assurant ainsi une précision et une réactivité accrues.
Grâce à la clarté des données produites, le suivi de l’avancement du projet est devenu plus intuitif et efficace.
Enfin, le visuel 3D demeure un atout stratégique, facilitant la communication et la coordination entre les équipes de production et de travaux. »
CLIENT ET PARTIES PRENANTES
Client : Castel Alu – Groupe FAYAT METAL
Autumn | Patriarche (Mandataire, entreprise générale)
Atelier Kempe Thill (Architecture)
Patriarche (Architecture)
Actualités de la société |
|
bocad 2026 : bien plus qu’une mise à jour – une nouvelle ère pour la conception et la collaboration BIM
OneProject, SmartDraw et le Clonage : une nouvelle dimension dans la gestion des... 11.12.2025
|
|
4 kilomètres de façades à repenser : la méthode Castel Alu
04.11.2025
|
|
Des nouveautés produits et bocad 2025.3 : une nouvelle étape pour vos projets
Efficacité, convivialité, interopérabilité, nuages de points… bocad 2025.3 est... 30.09.2025
|
